Home Theater Sub Placement Sub And Surround Placement / Upgr

Titus Schuppe

Placement dual sub question hometheatershack offline Subwoofer placement dual theater "custom" sub build

Subwoofer Placement Guidelines | Audioholics

Subwoofer Placement Guidelines | Audioholics

Subwoofer placement options for the best home theater Sub placement problem in large room Subwoofer placement : r/hometheater

Placement klipsch

Best sub placement for this setup? : r/hometheaterSub placement advice : hometheater New subwoofer! need help with placement. : hometheaterSubwoofer placement options for the best home theater.

Subwoofer placement help : hometheaterSub custom competed Subwoofer placement : hometheaterSub placement advice : r/hometheater.

Subwoofer placement : r/hometheater
Subwoofer placement : r/hometheater

Subwoofer placement : r/hometheater

Home theater sub and placement advicePlacement of home theater? : r/hometheater 2 sub placementCompact sub recommendations : hometheater.

Placement wwydSubwoofer placement options for the best home theater Dual subwoofer placement for your home theaterSub placement help.

Sub placement advice : r/hometheater
Sub placement advice : r/hometheater

Sub placement?????????

Sub advice : r/hometheaterI have a few sub placement options i could use some advice on : r Dual sub placement questionPlacement questions : hometheater.

Sub placement (limited) options. wwyd? : r/hometheaterPlacement hometheater Subwoofer placement options for the best home theaterSubwoofer placement guidelines.

Sub placement problem in large room | Home Theater Forum and Systems
Sub placement problem in large room | Home Theater Forum and Systems

New sub help : hometheater

Subwoofer placement audioholics guidelinesDual sub placement question Short home theater surround placement : r/hometheater2nd sub for difficult room.

4 sub placement open theaterBefore i clean this up, tips on sub placement? that's a 50" tv for Placement sub help hometheatershack forum offlineSubwoofer placement subs offset.

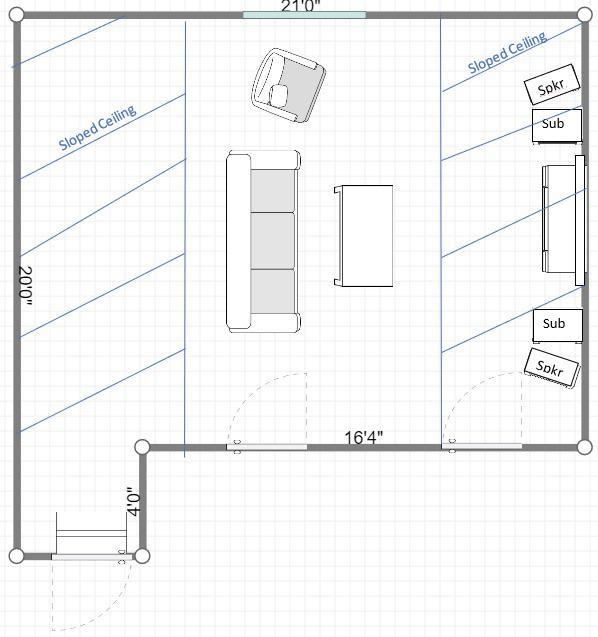
Sub and surround placement / upgrade options : r/hometheater
Sub and surround placement / upgrade options : r/hometheater

Sub and surround placement / upgrade options : r/hometheater

Placement surround upgrade hometheaterDual sub placement in 19.6 x 10.8 x 8.8 ft room for best bass : r .

.

4 sub placement open theater | AVS Forum
4 sub placement open theater | AVS Forum
2nd Sub for Difficult room | Home Theater Forum and Systems
2nd Sub for Difficult room | Home Theater Forum and Systems
Subwoofer Placement Options for the Best Home Theater | Audio Advice
Subwoofer Placement Options for the Best Home Theater | Audio Advice
Subwoofer Placement Options for the Best Home Theater | Audio Advice
Subwoofer Placement Options for the Best Home Theater | Audio Advice
Dual Sub Placement in 19.6 x 10.8 x 8.8 ft room for best bass : r
Dual Sub Placement in 19.6 x 10.8 x 8.8 ft room for best bass : r
Subwoofer Placement Guidelines | Audioholics
Subwoofer Placement Guidelines | Audioholics
Sub advice : r/hometheater
Sub advice : r/hometheater
Compact sub recommendations : hometheater
Compact sub recommendations : hometheater

YOU MIGHT ALSO LIKE